
Вы здесь
Камин газовый Element4 Modore 240 (топка)
Камин газовый Element4 Modore 240 (топка)
Высокое качество, простота управления, абсолютная безопасность, продуманный дизайн, управление огнём, глубина и насыщенность пламени, вот что отличает закрытые газовые камины Element4.
Важной особенностью закрытых газовых каминов Element4 является возможность работы на батарейках, без дополнительного подключения в электросеть.
Камины Element4 можно подключить, как и к газовому баллону (пропан/бутан), так и к магистральному газу (метан).
Камины Element4 полностью программируемы. Автоматический поджиг по таймеру, выключение по датчику температуры и другие режимы работы камина.
В каминах Element4 реализованы самые передовые технологии, применены современные дизайнерские решения, и при этом, сохранены лучшие цены на рынке закрытых газовых каминов.
Технические характеристики:
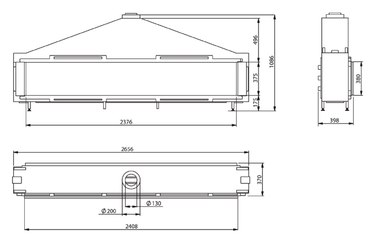
Габаритные размеры (Ш х В х Г): 2656 х 1086 х 398 мм
Топливо: Магистральный или баллонный газ